振動篩12年生產廠家
過濾,除雜,分級

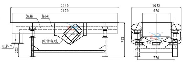
DZSF系列直線振動篩(直線篩)為雙振動電機驅動。當兩臺振動電機做同步、反向旋轉時,其偏心塊所產生的激振力在平行于電機軸線的方向相互抵消,在垂直于電機軸的方向疊為一合力,因此篩機的運動軌跡為一直線。兩電機軸相對篩面在垂直方向有一傾角,在激振力和物料自重力的合力作用下,物料在篩面上被拋起跳躍或向前作直線運動,從而達到對物料進行篩選和分級的目的。適用于粒度在0.074—5mm,含水量小于7%,無粘性的各種干式粉狀或顆粒狀物料的篩分。大給料粒度不大于10mm。新鄉大漢機械具備特殊型號制造的能力讓您有更多的選擇。





直線振動篩通常由振動器、篩網、篩箱、底座、彈簧支撐等組成。振動器提供振動力,驅動篩箱進行振動運動。篩箱內放置篩網,根據需要選擇不同規格的篩網。底座支撐整個設備,彈簧支撐系統用于減震和支撐。通過振動器產生的振動力,物料在篩網上進行篩分,實現顆粒物料的分級和篩分工作。這種結構設計使得直線振動篩具有高效、可靠的篩分性能。

Copyright ? 2007-2024 振動篩廠家-新鄉市大漢振動機械有限公司 | All Rights Reserved 版權所有
備案序號:豫ICP備09002479號-1
客服微信
